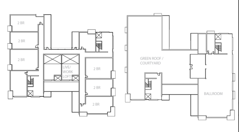
A mixed-use development project in Mt. Vernon, Baltimore, Maryland
beginning with a 10 unit commercial level flanked by active outdoor space, completed with 28 residential units among 4 floors.









A mixed-use development project in Mt. Vernon, Baltimore, Maryland
beginning with a 10 unit commercial level flanked by active outdoor space, completed with 28 residential units among 4 floors.







